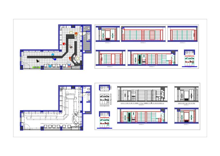
Bahar Eczanesi Eczane Dekorasyonu Projesi, 2010–2011 yılları arasında Zeytinburnu-İstanbul’da 120 m² alanda gerçekleştirilmiştir. Boş dükkân olarak teslim alınan alan, eczane konsepti doğrultusunda yeniden tasarlanmış ve tüm uygulama süreci tamamlanarak teslim edilmiştir. Proje kapsamında satış alanı, reçete karşılama bankosu, ilaç teşhir rafları ve depo bölümleri işlevsel gereksinimlere uygun şekilde planlanmıştır. Depolama sistemleri, ürün kategorilerine göre düzenlenmiş; hem personel kullanımını hem de müşteri erişimini kolaylaştıracak çözümler geliştirilmiştir. Aydınlatma, malzeme seçimi ve sabit mobilya uygulamaları hijyen, düzen ve kurumsal görünüm kriterleri doğrultusunda ele alınmıştır. Proje, anahtar teslim olarak tamamlanmıştır.







Provva Giyim Mağazası İç Dekorasyon Projesi, Eyüpsultan...
İnanırlar Spa Mobilya Mobilya Tasarım Projesi, İstanbulâ...
Artanlar Cephe Tasarımı Projesi, Beylikdüzü İstanbul’...