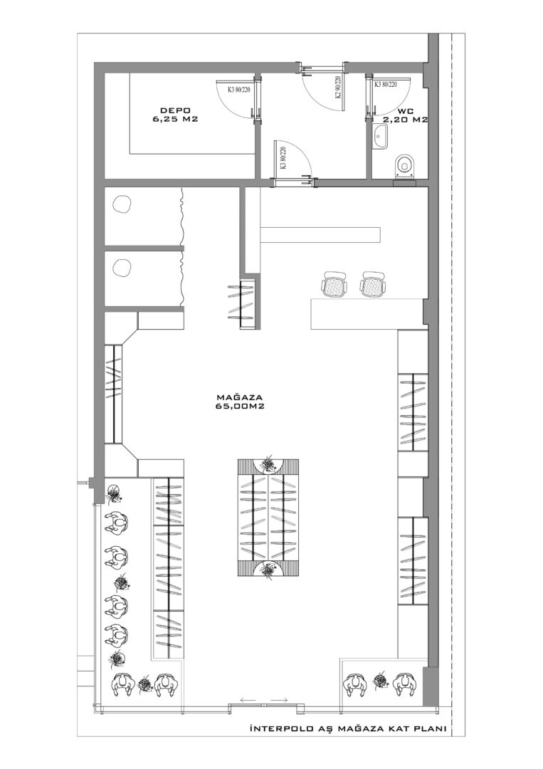
INTERPOLO Giyim Mağazası İç Dekorasyon Projesi, 2004–2005 yıllarında İstanbul Fatih’te 605 m²’lik alanda gerçekleştirilmiştir. INTERPOLO Giyim Mağazası İç Dekorasyon Projesi kapsamında Laleli’de bulunan yapı, dış cephe düzenlemesi ile birlikte bütüncül bir dönüşüm sürecinden geçirilmiştir. Ofis, showroom, satış, depolama ve personel alanları işlevsel gereksinimlere uygun şekilde yeniden planlanmıştır. Mekânsal organizasyon; ticari akışı destekleyen, ürün sergilemesini ön plana çıkaran ve operasyonel verimliliği artıran bir anlayışla ele alınmıştır. Sonuç olarak markanın kurumsal kimliğini yansıtan, düzenli ve profesyonel bir mağaza ve showroom yapısı teslim edilmiştir.




İnanırlar Spa Mobilya Mobilya Tasarım Projesi, İstanbulâ...
Karaköy Mağaza Ayakkabı Mağazası İç Dekorasyon Projes...