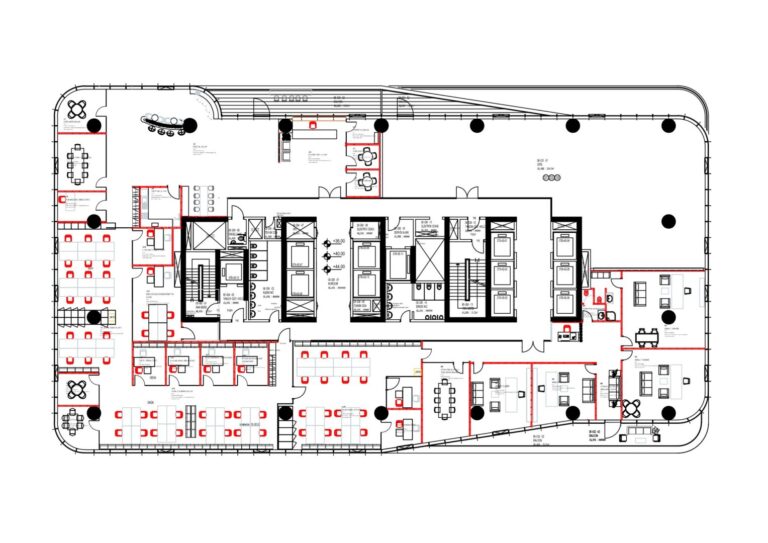
Mutlu Makarnacılık A.Ş. için 2021–2022 yılları arasında Sarıyer – İstanbul’da, Vadi İstanbul’da yer alan seçkin bir plazada 500 m2 ofis alanı tasarlanmış ve uygulaması tamamlanmıştır. Proje, kurumsal kimliği güçlü, temsil değeri yüksek ve çağdaş ofis standartlarına uygun bir çalışma ortamı oluşturma hedefiyle ele alınmıştır. Mekânsal kurgu; yönetici ofisleri, açık ofis alanları, toplantı odaları ve ortak kullanım hacimlerinin dengeli organizasyonu ile planlanmıştır. Sirkülasyon akışı netleştirilmiş, çalışan konforu ve verimlilik öncelikli kriter olarak değerlendirilmiştir. Malzeme seçimlerinde prestij algısını destekleyen yüzeyler tercih edilmiş; aydınlatma tasarımı, hacim etkisini güçlendirecek ve çalışma performansını artıracak şekilde katmanlı olarak kurgulanmıştır. Ofis, tüm teknolojik altyapısı ile birlikte projelendirilmiş; elektrik, data, zayıf akım ve mekanik sistemler tasarıma entegre edilmiştir. Tasarım ve uygulama süreci tarafımızdan yürütülerek proje anahtar teslim olarak tamamlanmıştır.





































İnanırlar Spa Mobilya Mobilya Tasarım Projesi, İstanbulâ...
Arterra Mimarlık Ofis Projesi, 4. Levent İstanbul’da 53 ...